Eengezinswoning
Omschrijving
Ruime tussenwoning met maar liefst 5 slaapkamers en 2 parkeerplaatsen op eigen terrein in het gezellige Wateringen
In een rustige straat, op loopafstand van het gezellige centrum van Wateringen, ligt deze verrassend ruime en goed ingedeelde tussenwoning met vijf slaapkamers, een aangebouwde serre en twee parkeerplaatsen op eigen terrein aan de voorzijde van de woning.
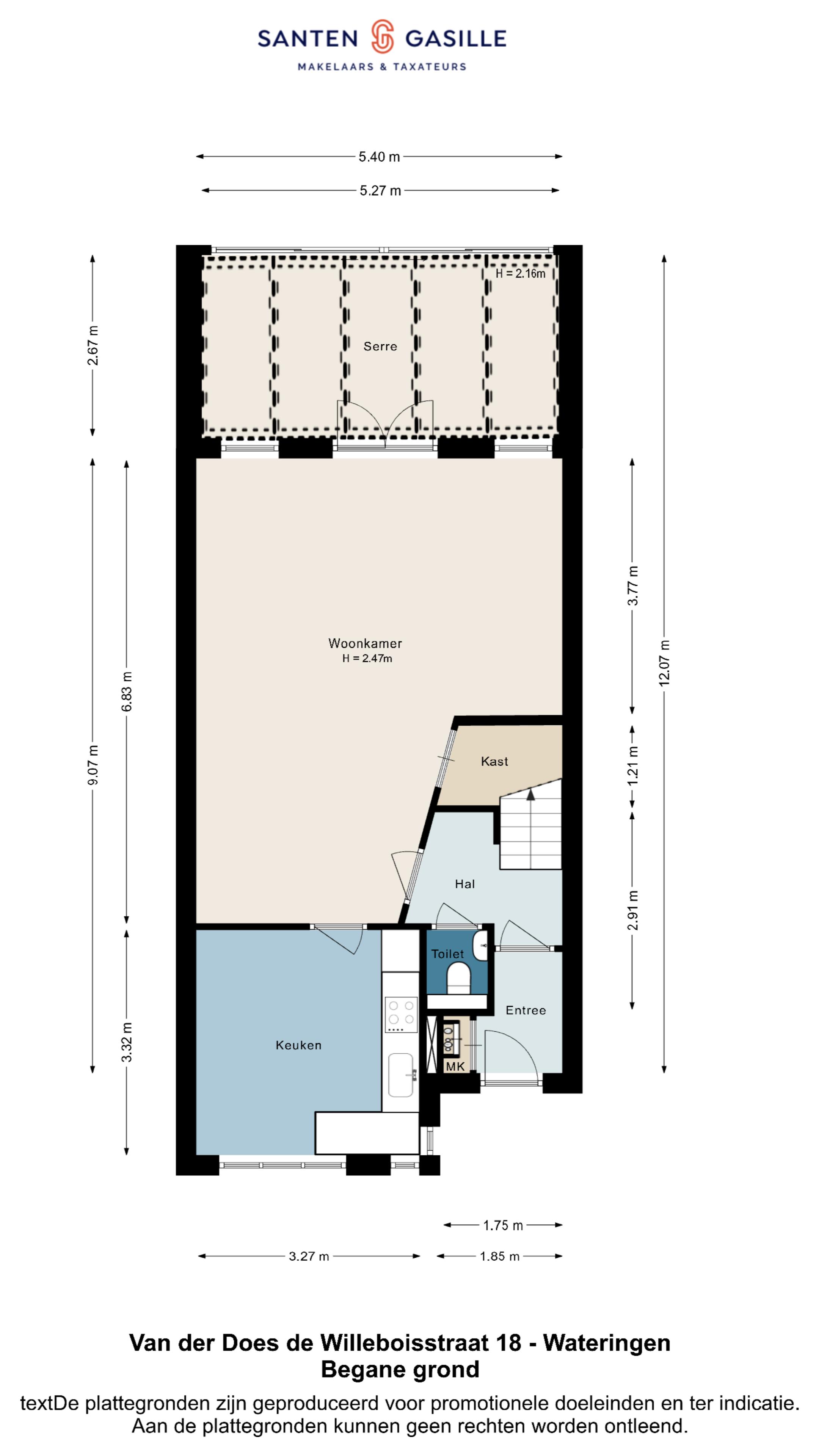
Begane grond
Via de entree komt u in de hal met meterkast een tochtportaal. Hier bevindt zich tevens het toilet met fonteintje. Vanuit de hal heeft u toegang tot de woonkamer. Aan de voorzijde van de woning bevindt zich de afgesloten keuken, uitgevoerd in een praktische hoekopstelling.
De woonkamer is ruim opgezet en beschikt over een zeer royale provisiekast, ideaal voor extra voorraad en bergruimte. Middels openslaande deuren bereikt u de aangebouwde serre, die zorgt voor een heerlijke verlenging van de leefruimte en een mooie overgang naar de zonnige achtertuin.
De achtertuin is prettig gelegen en beschikt over een stenen berging en een achterom.
Eerste verdieping
Op de eerste verdieping bevinden zich drie slaapkamers: twee aan de achterzijde en één aan de voorzijde van de woning. De badkamer ligt aan de voorzijde en is compleet uitgevoerd met een douche, ligbad, toilet en een designradiator.
Tweede verdieping
Via een vaste trap bereikt u de tweede verdieping. Op deze verdieping zijn de vierde slaapkamer aan de voorzijde met een dakraam en de vijfde slaapkamer aan de achterzijde met een dakkapel te vinden.
Op de ruime voorzolder is toegang tot de vliering, de opstelplaats voor wasmachine en droger en de cv-ketelopstelling met volop ruimte om de was te drogen.
Bijzonderheden:
* Energielabel A
* Gelegen op eigen grond in een rustige straat
* Twee parkeerplaatsen op eigen terrein
* Aangebouwde serre
* Achtertuin met stenen berging en een achterom
* Vijf slaapkamers
* Cv ketel Intergas bouwjaar 2024
* de dakgoten aan de voor en achter zijn vernieuwd in 2025
* Dakraam slaapkamer 2e verdieping is vernieuwd in 2025
* Schilderwerk aan de buitenzijde is in 2025 gedaan, de zijkanten van de dakkapel zijn tevens gedaan in 2025
* Gelegen op loopafstand van het centrum van Wateringen
* Ouderdoms- en materialenclausule van toepassing
* Niet-bewoningsclausule van toepassing
* Santen & Gasille Verkoopvoorwaarden van toepassing
* Oplevering in overleg
Bent u op zoek naar een ruime gezinswoning met volop parkeergelegenheid en alle voorzieningen binnen handbereik? Dan is deze woning in Wateringen absoluut een bezichtiging waard!
Specificaties
Overdracht
- Vraagprijs: €600.000,- k.k.
- Status: Beschikbaar
- Aanvaarding: In overleg
Bouw
- Soort woonhuis: Tussenwoning
- Bouwjaar: 1993
- Soort dak: Zadeldak
Oppervlakten
- Woonoppervlakte: 149 m²
- Perceel: 157 m²
- Inhoud: 536 m³
Meer weten over deze woning?

Stefanie Kloosterman
Reageer op deze woning
Meer weten over deze woning of een afspraak inplannen? Laat je gegevens achter en wij nemen zo snel mogelijk contact met je op!





































