Maisonnette
Omschrijving
Comfortabel wonen in hartje Wateringen
Op een perfecte locatie in het centrum van Wateringen ligt deze goed onderhouden 3/4-kamer maisonnette met een zonnig balkon op het zuidoosten en een zeer royale inpandige berging in de onderbouw. De woning is verdeeld over de eerste en tweede verdieping van een kleinschalig en verzorgd appartementencomplex en combineert comfort, licht en een praktische indeling met alle voorzieningen op loopafstand.
Indeling:
Centraal entree op de begane grond, afgesloten portiek met brievenbus- en bellentableau, toegang tot alle fietsenbergingen en de trap naar de eerste verdieping.
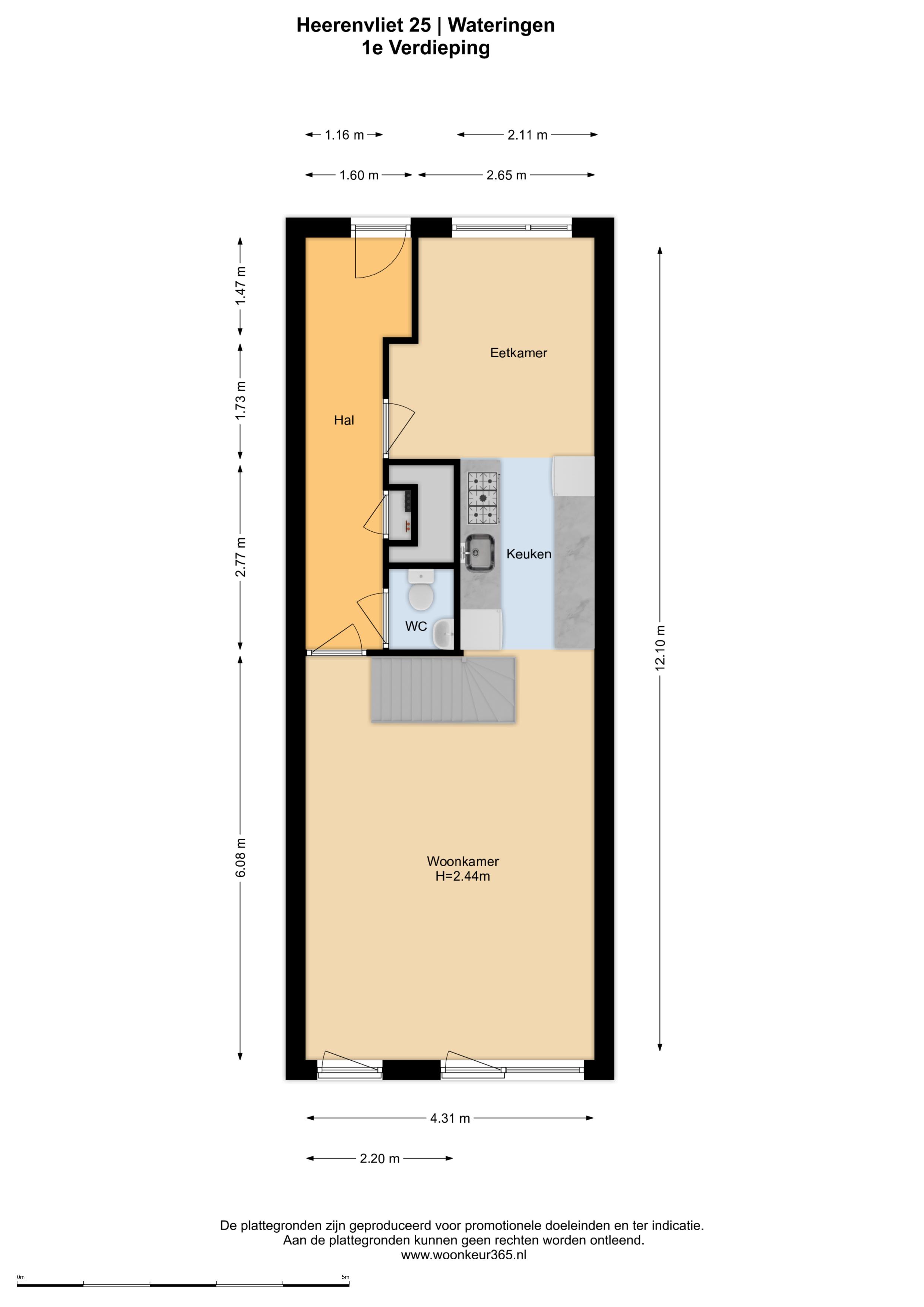
Eerste verdieping – wonen
De entree/hal geeft toegang tot de meterkast en een modern toilet met zwevend closet en fonteintje. Aan de voorzijde bevindt zich de eetkamer die via de keuken in open verbinding staat met de ruime woonkamer. De ruime woonkamer is heerlijk licht dankzij twee franse balkons en beschikt over een open trap naar de slaapverdieping.
De keuken is uitgevoerd met een stijlvol marmeren aanrechtblad en voorzien van diverse inbouwapparatuur, waaronder een inductiekookplaat, afzuigkap, combi-oven/magnetron, Quooker, vaatwasser, koelkast en vriezer.
De gehele woonlaag is afgewerkt met een lichte laminaat vloer met comfortabele vloerverwarming.
Tweede verdieping – slapen
Op de ruime overloop bevindt zich een praktische inbouwkast met wasmachineaansluiting, de CV-combiketel en de mechanische ventilatie-unit.
De moderne badkamer is volledig betegeld in een warme kleur en voorzien van een wastafelmeubel met vaste wastafel en lades, diepe inloopdouche met draine en een tweede toilet.
De verdieping beschikt over twee ruime slaapkamers, beide kamers over de gehele breedte van de woning. De slaapkamer aan de achterzijde (Herenstraat-zijde) heeft een vaste kastenwand en directe toegang tot het zonnige balkon op het zuidoosten – een heerlijke plek om de dag te beginnen. De huidige hoofdslaapkamer ligt aan de voorzijde (Heerenvliet-zijde) en heeft grote raamkozijnen.
De gehele verdieping is afgewerkt met een nette laminaatvloer en tevens vloerverwarming.
Deze maisonnette woning is gelegen in een kleinschalig appartementencomplex met op de begane grond winkels bereikbaar vanaf de Herenstraat en op de verdieping 5 maisonnettes. De VvE is goed geregeld, het contact verloopt soepel en de financiën zijn goed op orde. Zo worden de gemeenschappelijke ruimtes 1x per kwartaal schoongehouden, is de opstalverzekering collectief geregeld en wordt het schilderwerk aan de buitenzijde in 2026 uitgevoerd.
De ligging is ideaal. Op de rand van het gezellige centrum van Wateringen met alle voorzieningen zoals bijvoorbeeld de bakker, de slager, de supermarkt, maar ook lunchrooms, restaurants en/of kledingzaken op loopafstand. Ook sport- en recreatievoorzieningen, het openbaar vervoer en de uitvalswegen zijn zeer goed bereikbaar. Zo ben je snel in de andere gezellige kernen van het Westland of in de grote steden zoals bijvoorbeeld Den Haag, Delft en Rotterdam.
Natuurlijk pak je snel de fiets als je op zo'n centrale locatie woont, maar ook de auto kun je dichtbij parkeren. Zowel aan de Heerenvliet als op het achtergelegen parkeerterrein bij het Bakkershof.
Kortom: een comfortabele, sfeervolle, instapklare maisonnette op een uitstekende locatie, perfect voor wie centraal wil wonen met ruimte, licht en buitenruimte.
Bijzonderheden:
- vloerverwarming op beide woonlagen, regelbaar in elke ruimte
- VvE bijdrage € 123,80 per maand
- zeer actieve en gezonde VvE, buitenschilderwerk wordt uitgevoerd in 2026
- Santen & Gasille verkoopvoorwaarden van toepassing
- oplevering in overleg
Specificaties
Overdracht
- Vraagprijs: €410.000,- k.k.
- Status: Beschikbaar
- Aanvaarding: In overleg
Bouw
- Soort woonhuis: Appartement
- Bouwjaar: 2005
- Soort dak: Plat dak
Oppervlakten
- Woonoppervlakte: 93 m²
- Inhoud: 299 m³
Meer weten over deze woning?

Stefanie Kloosterman
Reageer op deze woning
Meer weten over deze woning of een afspraak inplannen? Laat je gegevens achter en wij nemen zo snel mogelijk contact met je op!










































