Hoekwoning
Omschrijving
Karakteristieke hoekwoning met 3 slaapkamers, een werkkamer, een aangebouwde veranda, een riante achtertuin op het Zuid-Westen en met 2 parkeerplaatsen op eigen terrein. Bij deze woning is er in de achtertuin de mogelijkheid om de schuur om te bouwen naar een garage. De woning combineert authentieke charme met modern wooncomfort en biedt met een woonoppervlakte van 146m² volop leefruimte. Wat deze woning extra bijzonder maakt, is de fijne indeling, de royale tuin en de multifunctionele schuur met veranda.
De smaakvol verbouwde woonkamer vormt zonder twijfel het hart van de woning. Dankzij de aangebouwde overkapping en de directe verbinding met de riante achtertuin ontstaat er een heerlijke leefruimte waar binnen en buiten moeiteloos in elkaar overlopen. Hier geniet u het hele jaar door van comfort en gezelligheid tot de ondergaande zon.
De tuin is met zorg aangelegd en biedt volop privacy en zon. Achterin bevindt zich een grote houten schuur met veranda, die het geheel compleet maakt en geschikt is voor diverse doeleinden.
Aan de voorzijde beschikt de woning over een volledig bestrate voortuin met parkeergelegenheid voor twee auto’s op eigen terrein zeker een groot pluspunt.
Locatie & omgeving
De woning is gelegen op een gunstige locatie nabij het centrum van Wateringen. Winkels, scholen, parken en openbaar vervoer bevinden zich op korte afstand. Ook de uitvalswegen zijn goed bereikbaar, wat zorgt voor een prettige balans tussen rust en bereikbaarheid.
Indeling:
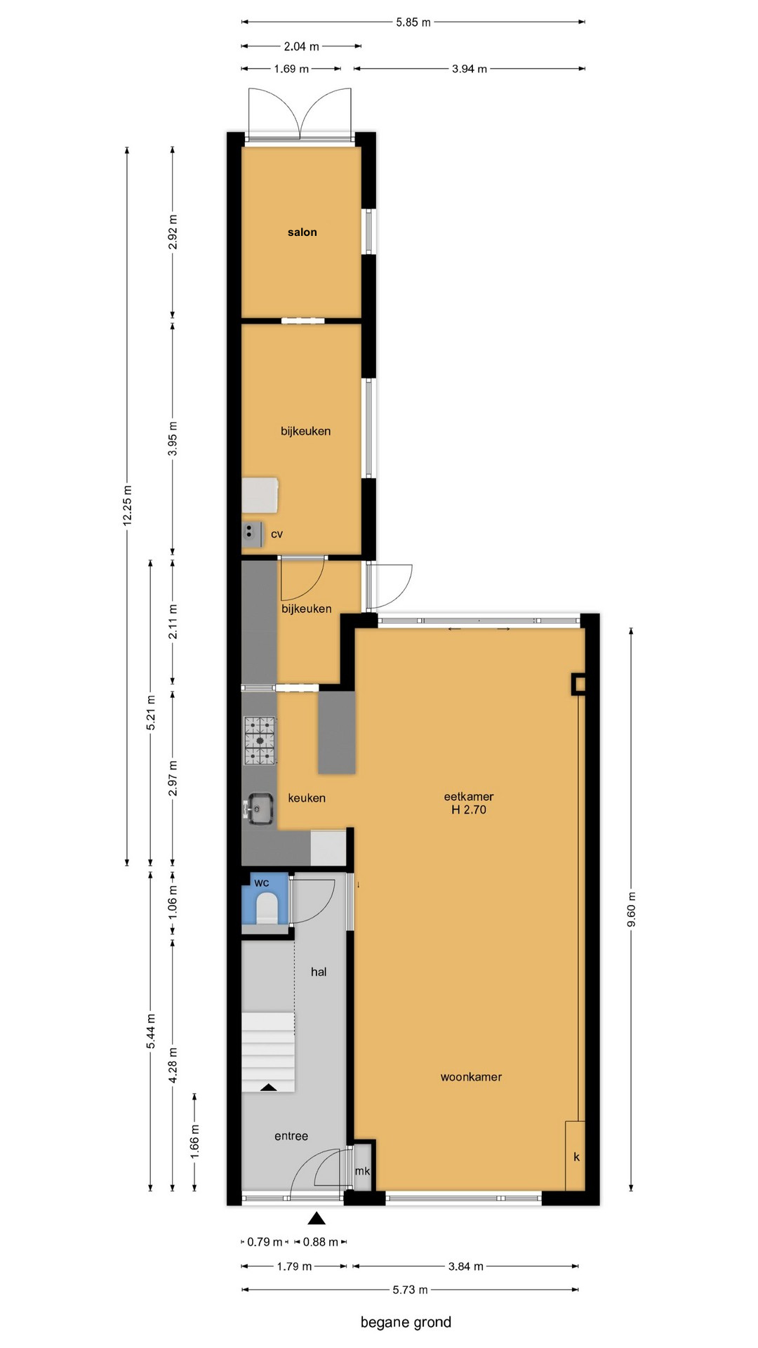
Begane grond
Via de voortuin betreedt u de woning. De hal met meterkast en trapopgang, kastruimte en een modern, volledig betegeld toilet.
De woonkamer is fraai afgewerkt met lambrisering, betonlook wanden, shutters en een tegelvloer met vloerverwarming. De kunststof schuifdeuren geven toegang tot de sfeervolle overkapping, waardoor binnen en buiten naadloos in elkaar overlopen.
De verlengde open keuken in landelijke stijl is voorzien van diverse inbouwapparatuur en beschikt over een karakteristieke boerendeur naar de overkapping.
Daarnaast is er een praktische bijkeuken aanwezig, met opstelplaats voor de Cv-ketel en wasmachine, met daarachter nog een ruimte, thans in gebruik als salon, een multifunctionele ruimte met wateraansluiting en afvoer, ideaal voor diverse doeleinden.
De zonnige achtertuin is zorgvuldig onderhouden en beschikt over een zij-ingang. In de tuin vindt u onder andere een vijgenboom en appelboom. De grote houten schuur is multifunctioneel en kan, met een aanpassing, ook als garage worden gebruikt.
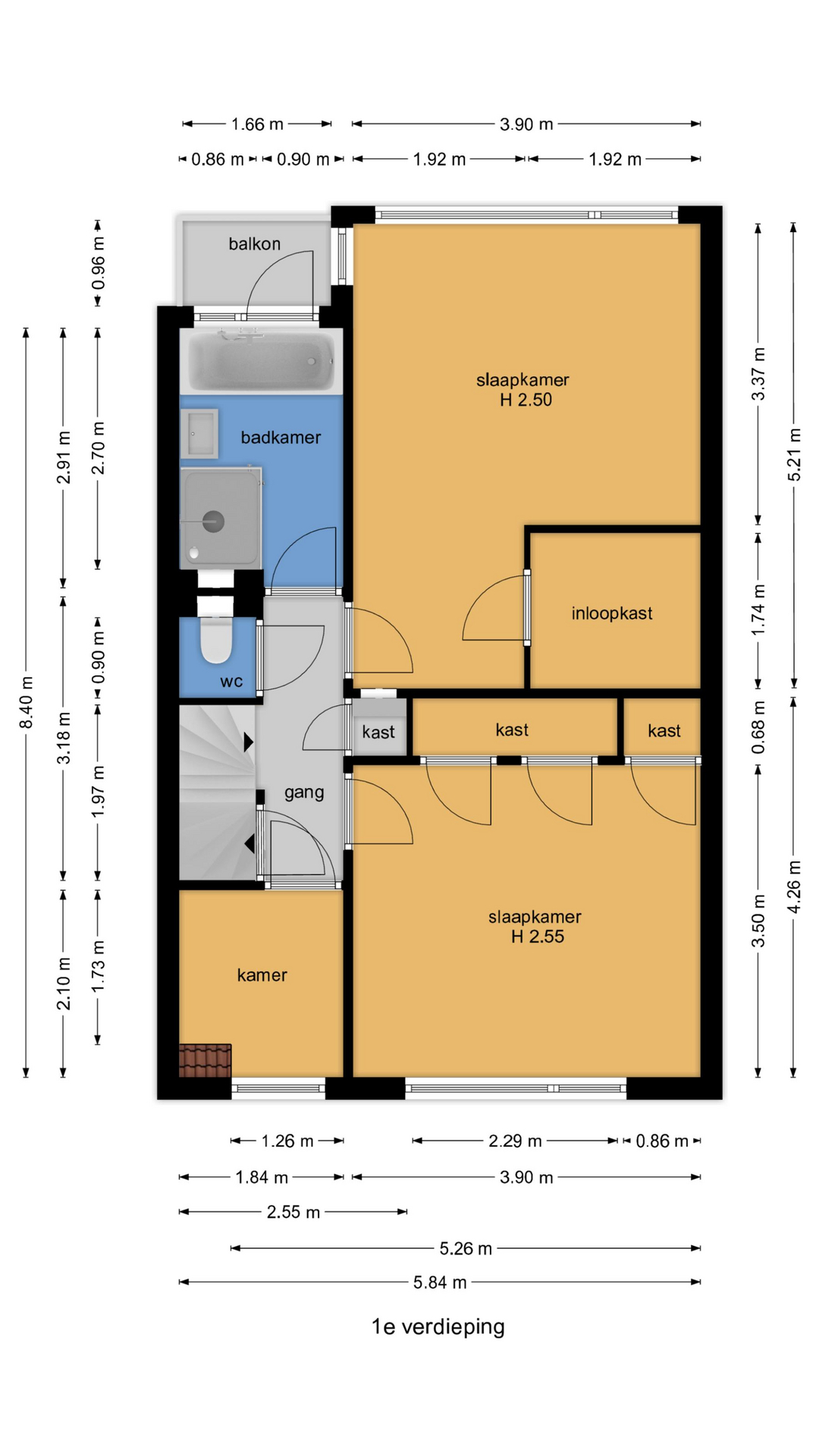
Eerste verdieping
De overloop biedt toegang tot een vaste kast, een tweede toilet, de badkamer, een studeer-/kinderkamer en twee ruime slaapkamers. De slaapkamer aan de voorzijde beschikt over drie vaste kasten en een dakkapel. De ruime slaapkamer aan de achterzijde is voorzien van een praktische walk-in closet.
De badkamer is volledig betegeld en voorzien van een inloopdouche, ligbad, wastafelmeubel en heeft vloerverwarming.
Tweede verdieping
Op de tweede verdieping bevindt zich een extra kamer met dakkapel en een wastafel met warm en koud water die tevens in gebruik is als slaapkamer. Achter de knieschotten is extra bergruimte aanwezig.
Bijzonderheden & extra informatie
* perceel 255m², eigen grond
* Energieklasse C
* Goede bereikbaarheid van het centrum van Wateringen
* Eigen parkeerruimte voor 2 auto's
* Dakbedekking van de dakkapellen is vernieuwd
* Zijmuur volledig geïsoleerd
* Voorgevel gestraald en achtergevel opnieuw gevoegd
* Volledig voorzien van dubbel glas (bovenverdieping triple glas)
* Vloerverwarming in woonkamer en badkamer
* Grote houten schuur, eventueel te gebruiken als garage
* Sfeervolle aangebouwde overkapping met houten vloer
* Bijkeuken en salon met diverse gebruiksmogelijkheden
* Ouderdoms- en materialenclausule van toepassing
* Santen & Gasille Verkoopvoorwaarden van toepassing
* Oplevering in overleg
Kortom een woning met karakter, ruimte en verrassend veel mogelijkheden, een unieke kans op een perfecte locatie laat u toch niet liggen? Neem vandaag nog contact met ons op om een afspraak in te plannen! Uw droomhuis wacht op u aan de Ambachtsweg 46 in Wateringen.
Specificaties
Overdracht
- Vraagprijs: €650.000,- k.k.
- Status: Beschikbaar
- Aanvaarding: In overleg
Bouw
- Soort woonhuis: Eengezinswoning
- Bouwjaar: 1916
- Soort dak: Zadeldak
Oppervlakten
- Woonoppervlakte: 146 m²
- Perceel: 255 m²
- Inhoud: 473 m³
Meer weten over deze woning?

Stefanie Kloosterman
Reageer op deze woning
Meer weten over deze woning of een afspraak inplannen? Laat je gegevens achter en wij nemen zo snel mogelijk contact met je op!

























































