Bovenwoning
Omschrijving
For English read below!
Geheel gerenoveerd (2020) ruim (102 m²), licht 4-kamer gemeubileerd hoek-appartement met “panoramisch” uitzicht en zonnig balkon (ZW) in Waldeck op de grens met Bohemen, Winkelcentrum Waldeck, Landgoed Meer en Bos, strand en zee (badplaats Kijkduin), sportverenigingen, waaronder golfclub Ockenburgh, diverse scholen, waaronder The International School en openbaar vervoer (Randstad Rail 3) zijn op ‘loop’ afstand bereikbaar. Tevens zijn de uitvalswegen richting de snelwegen A4/A12/A13 eenvoudig bereikbaar. Het appartement is zonder ‘traptreden’ met lift bereikbaar.
Kortom: Dit prachtige appartement is zeker een bezichtiging waard!
Completely renovated (2020), spacious (102 m²), bright 4-room furnished corner apartment with panoramic views and a sunny balcony (southwest) in Waldeck, on the border with Bohemia. Waldeck Shopping Center, the Meer en Bos estate, the beach and sea (Kijkduin seaside resort), sports clubs, including Ockenburgh Golf Club, various schools, including The International School, and public transport (Randstad Rail 3) are all within walking distance. The A4, A12, and A13 motorways are also easily accessible. The apartment is accessible by elevator without steps.
In short: This beautiful apartment is definitely worth a viewing!
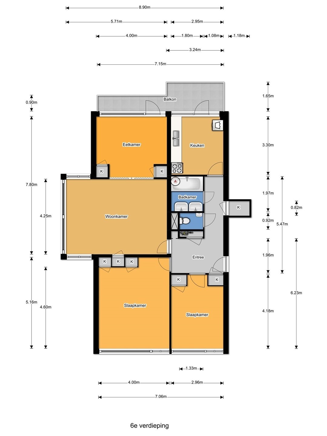
Indeling: Gesloten portiek met bellen- en brievenbussentableau. Via trap of lift naar de 6e verdieping. Entree, ruime hal met gang, zeer lichte L-vormige woon-eetkamer met 3 vaste kasten en een deur naar een uitermate zonnig balkon, 2 ruime slaapkamers aan de voorzijde respectievelijk ca. 4.60 x 4.00 met 2 vaste kasten en ca. 4.18 x 2.96 met 2 vaste kasten met 2 vaste kasten, extra berging en een aansluiting voor een wastafel, luxe keuken (zwart uitgevoerd met inbouw apparatuur waaronder 5-pits gasfornuis met wok brander, inbouw combi oven, design afzuigkap, inbouw koel/vriescombinatie, vaatwasser en wasmachine en een deur naar het balkon, inpandige volledig betegelde badkamer met douchecabine, wastafel en opstelling badkamerboiler met een inhoud van 80 liter , separaat zwevend toilet met een fonteintje, inpandige berging, meterkast, garderobekast en vaste kast op de gang. Berging op straatniveau.
Afmetingen in meters:
Woon- eetkamer ca. 5.71 x 4.25 en ca. 4.00 x 3.30
Slaapkamer I ca. 4.60 x 4.00
Slaapkamer II ca. 4.18 x 2.96
Keuken ca. 3.30 x 2.96
Badkamer ca. 1.97 x 1.97
Balkon ca. 7.15 x 1.65 0.90
Berging inpandig ca. 1.18 x 0.82
Berging ca. 3.07 x 2.65
Details:
- Huurprijs is exclusief water / elektriciteit / tv / internet / lokale belastingen
- Huurprijs is exclusief voorschot stookkosten ad. € 200,00 per maand
- Exact gemeten volgens de branche brede meetinstructie (Meetrapport conform NEN2580)
- Het appartement wordt gemeubileerd opgeleverd
- De woning wordt verwarmd door middel van blokverwarming
- Warm water middels een badkamerboiler met een inhoud van 80 liter en een keukenboiler met een inhoud van 10 liter
- De kozijnen zijn uitgevoerd in hout met dubbel glas
- Het gehele appartement is uitgevoerd met een laminaatvloer
- De woonkamer/eetkamer is luxe gemeubileerd met o.a. zonwering aan erkerzijde en voorzien van 65"led 4K smart televisie
- De elektrische installatie bestaat o.a. uit 5 groepen, een aardlekschakelaar en een normaal- en laagtariefmeter
- Luxe keuken met inbouwapparatuur
- Volledig betegelde badkamer met douchecabine, wastafel en radiator
- Balkon aanwezig
- Privé berging in de onderbouw
- Gratis parkeren op de openbare weg en op het gemeenschappelijke parkeerterrein achter het gebouw (geen eigen parkeerplaats)
- Beschikbaar in overleg
Huurvoorwaarden:
- U moet minimaal een (gezamenlijk) netto inkomen aantonen dat gelijk is aan 2.5 x de totale huurprijs
- Niet beschikbaar voor studenten / woningdelers
- 1 maand waarborg te betalen voor aanvang huurcontract (indien niet in loondienst kan verhuurder 2 maanden waarborg als eis stellen)
- Het is niet toegestaan te roken en er mogen geen veranderingen aan de woning worden aangebracht
- Huisdieren zijn niet toegestaan, blindengeleidehonden en andere assistentiehonden wel zijn toegestaan.
- Er worden geen uitspraken gedaan over het toewijzingsbeleid.
Om in aanmerking te komen voor de aangeboden woning, dient de aanvrager(s) de onderstaande documenten aan te leveren:
- Kopie geldig paspoort / ID-kaart / werkvergunning / visum
- Kopie recente werkgeversverklaring(en) niet ouder dan 1 maand
- Kopie 3 recente opeenvolgende salarisstroken van aanvrager(s)
- Kopie 3 recente opeenvolgende bankafschriften (digitaal is toegestaan) waarop bijschrijving van het salaris zichtbaar is
- Verklaring van verhuurder/beheerder/eigenaar/hypotheekhouder van huidige woning met bevestiging van goed betalingsgedrag
- Uittreksel uit de BRP (basisregistratie personen) van uw gemeente
In geval van echtscheiding, aanvullend:
- Echtscheidingsconvenant
- Kopie van alle alimentatiebetalingen, indien van toepassing
Voor zelfstandigen (ZZP), directeur/aandeelhouders aanvullend:
- Recente accountants verklaring met balans en winst- en verliesrekening van de afgelopen 2 jaar, goedgekeurd door gecertificeerd accountant. (Conceptversie is niet voldoende)
- Kolommen balans winst/verlies lopende boekjaar
- Recent uittreksel van de Kamer van Koophandel (niet ouder dan 1 maand)
- Definitieve aanslagen IB 60 van de afgelopen 2 jaar
Deze informatie is door ons met de nodige zorgvuldigheid samengesteld. U kunt aan deze verhuur-beschrijving geen rechten ontlenen. Onzerzijds wordt echter geen enkele aansprakelijkheid aanvaard voor enige onvolledigheid, onjuistheid of anderszins, dan wel de gevolgen daarvan. Alle opgegeven maten en oppervlakten zijn indicatief.
Layout: Enclosed porch with doorbells and mailboxes. Stairs or elevator to the 6th floor. Entrance, spacious hall with corridor, very bright L-shaped living-dining room with 3 built-in wardrobes and a door to an extremely sunny balcony, 2 spacious bedrooms at the front respectively approx. 4.60 x 4.00 with 2 built-in wardrobes and approx. 4.18 x 2.96 with 2 built-in wardrobes with 2 built-in wardrobes, extra storage room and a connection for a sink, luxury kitchen (black with built-in appliances including 5-burner gas stove with wok burner, built-in combination oven, designer extractor hood, built-in fridge / freezer, dishwasher and washing machine and a door to the balcony, indoor fully tiled bathroom with shower cabin, sink and bathroom boiler with a capacity of 80 liters, separate floating toilet with a sink, indoor storage room, meter cupboard, wardrobe and built-in closet in the hallway. Storage at street level.
Dimensions in meters:
Living/dining room approx. 5.71 x 4.25 and approx. 4.00
x 3.30 Bedroom I approx.
4.60 x 4.00 Bedroom II approx. 4.18 x 2.96
Kitchen approx. 3.30 x 2.96
Bathroom approx. 1.97 x 1.97
Balcony approx. 7.15 x 1.65 0.90
Indoor storage approx. 1.18 x 0.82
Storage approx. 3.07 x 2.65
Details:
- Rental price is excluding water / electricity / TV / internet / local taxes
- Rental price is excluding advance heating costs of € 200.00 per month
- Exactly measured according to the industry-wide measuring instructions (Measurement report in accordance with NEN2580)
- The apartment is delivered furnished
- The house is heated by means of block heating
- Hot water through a bathroom boiler with a capacity of 80 liters and a kitchen boiler with a capacity of 10 liters
- The window frames are made of wood with double glazing
- The entire apartment has a laminate floor
- The living room / dining room is luxuriously furnished with, among other things, sun blinds on the bay window side and equipped with a 65" LED 4K smart TV
- The electrical installation consists of 5 groups, an earth leakage circuit breaker and a normal and low rate meter
- Luxury kitchen with built-in appliances
- Fully tiled bathroom with shower cabin, sink and radiator
- Balcony available
- Private storage room in the basement
- Free parking on the public road and in the communal parking lot behind the building (no private parking space)
- Available in consultation
Rental conditions:
- You must demonstrate a (joint) net income equal to at least 2.5 x the total rent
- Not available for students / house sharers
- 1 month's deposit to be paid before the start of the rental contract (if not employed, the landlord can require a 2 month's deposit)
- Smoking is not permitted and no alterations may be made to the property
- Pets are not allowed, guide dogs and other assistance dogs are permitted.
- No statements are made about the allocation policy.
To be eligible for the offered property, the applicant(s) must provide the following documents:
- Copy of valid passport / ID card / work permit / visa
- Copy of recent employer's statement(s) not older than 1 month
- Copy of 3 recent consecutive pay slips of applicant(s)
- Copy of 3 recent consecutive bank statements (digital is permitted) showing the salary credit
- Statement from landlord/manager/owner/mortgagee of current home confirming good payment history
- Extract from the BRP (Basic Registration of Persons) of your municipality
In case of divorce, additionally:
- Divorce agreement
- Copy of all alimony payments, if applicable
For self-employed persons (ZZP), director/shareholders additionally:
- Recent accountant's statement with balance sheet and profit and loss account of the past 2 years, approved by a certified accountant. (Draft version is not sufficient)
- Balance sheet profit/loss columns current financial year
- Recent extract from the Chamber of Commerce (not older than 1 month)
- Final IB 60 assessments of the past 2 years
This information has been compiled by us with due care. You cannot derive any rights from this rental description. However, no liability is accepted on our part for any incompleteness, inaccuracy or otherwise, or the consequences thereof. All stated sizes and surface areas are indicative.
Specificaties
Overdracht
- Vraagprijs: €2.600,- p.m.
- Status: Beschikbaar
- Aanvaarding: In overleg
Bouw
- Soort woonhuis: Appartement
- Bouwjaar: 1972
- Soort dak: Plat dak
Oppervlakten
- Woonoppervlakte: 101 m²
- Inhoud: 336 m³
Meer weten over deze woning?

Reageer op deze woning
Meer weten over deze woning of een afspraak inplannen? Laat je gegevens achter en wij nemen zo snel mogelijk contact met je op!










































