Geschakelde 2-onder-1-kapwoning
Omschrijving
Deze unieke, royale, goed onderhouden en luxe afgewerkte geschakelde twee-onder-een kapwoning, met eigen parkeerplaats voor de deur, 3 woonlagen, ruime L-vormige living, moderne keuken en badkamer, 3 royale slaapkamers met airco, de mogelijkheid om 1 of zelfs 2 slaapkamers extra te realiseren, zeer goed onderhouden, luxe afgewerkt en duurzaam uitgevoerd, is zeer centraal gelegen in De Lier.
Aan de voorzijde is de woning vrij gelegen waardoor je heerlijk thuis komt. Je parkeert je auto voor de deur op je eigen parkeerplaats voor de berging. De straat is ruim opgezet en heeft voldoende openbare parkeergelegenheid.
Indeling:
Een verzorgde voortuin geeft toegang tot de woning. Entree, ruime hal met modern toilet en toegang tot de aangebouwde berging/garage. Dit is meer dan zomaar een berging/garage; compleet uitgevoerd met elektra, verwarming (vloerverwarming + radiator) en wateraansluiting, een vaste kastenwand over de gehele breedte en aansluiting voor de wasmachine/droger. Deze berging/garage is ook vanaf de straatzijde bereikbaar door middel van een elektrisch bedienbare kanteldeur. Ideaal om bijvoorbeeld je fietsen en/of scooter en/of bakfiets goed te kunnen stallen.
De woonkamer heeft een strak gestuukt plafond met spots, een vaste kast en is L-vormig waardoor je deze goed kunt indelen met een sfeervolle living met gashaard aan de achterzijde en eetkamer met ruimte voor een grote eettafel om heerlijk te tafelen met familie en/of vrienden in het brede gedeelte.
Aan de voorzijde de complete en luxe keuken in U-opstelling voorzien van diverse inbouwapparatuur zoals een koel-/vriescombinatie, 5-pits inductiekookplaat met afzuigkap, vaatwasser, magnetron, oven en heet-waterkraan. De keuken is in witte kleurstelling met een zwart granitoblad en sfeervolle zwarte shutters voor de ramen met uitzicht op de voortuin.
De brede en zonnige tuin (ZO) bereik je door middel van een brede schuifpui. De tuin heeft groene borders en hoge leibomen om er in de zomer een ware groene kamer van te maken. Ook hier heb je genoeg mogelijkheden om de tuin op verschillende manieren te gebruiken. Een heerlijke plek om te zonnen, loungen of dineren, maar ook genoeg ruimte voor jongere kinderen om te kunnen spelen.
De woonkamer, toilet en hal zijn voorzien van een mooie vloertegel waarbij de woonkamer en hal ook is voorzien van vloerverwarming.
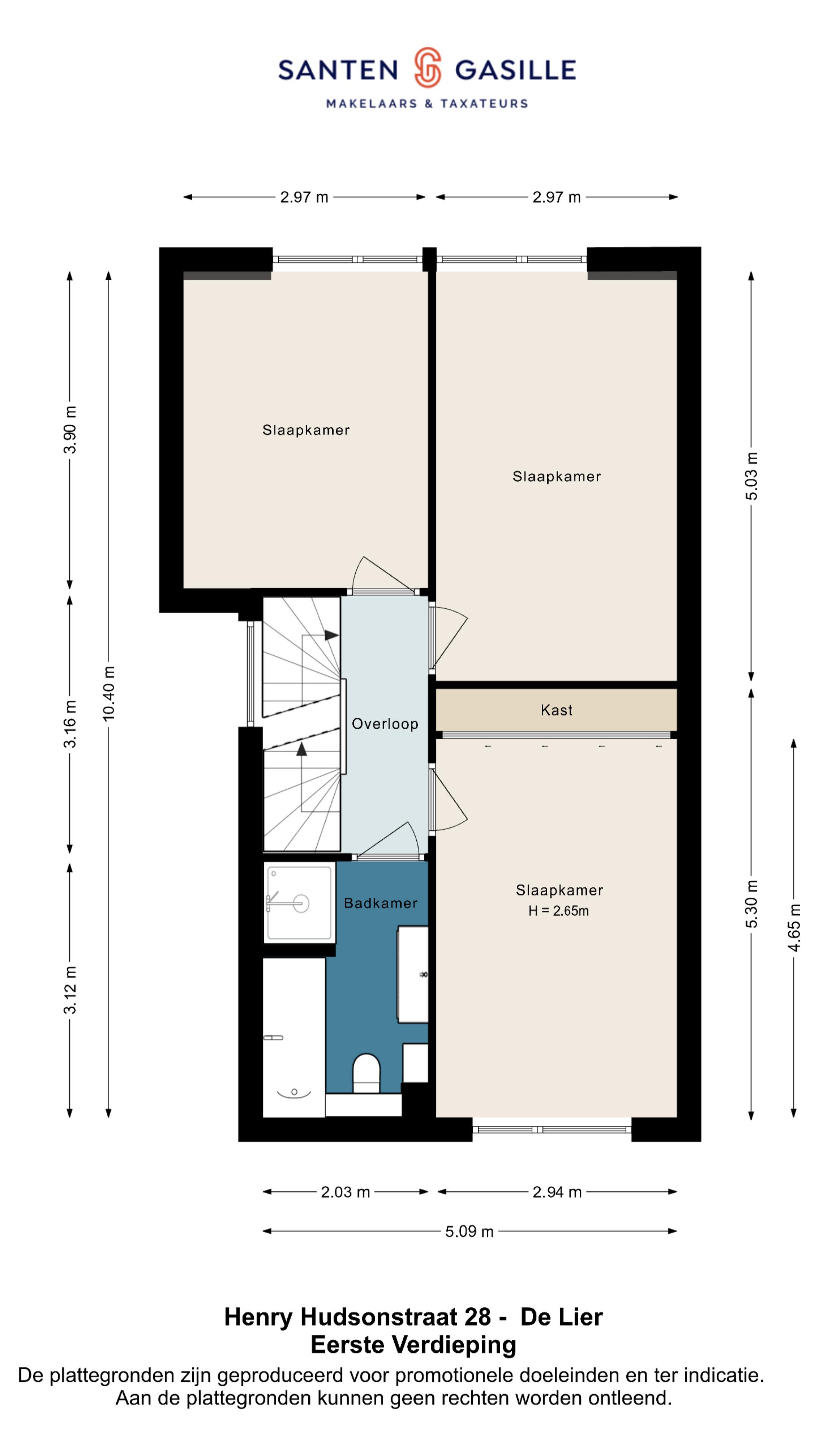
Eerste verdieping:
Een ruime overloop geeft toegang tot 2 slaapkamers aan de achterzijde met een brede en hoge dakkapel en tot de 3e slaapkamer met vaste kastenwand aan de voorzijde. Alle 3 de slaapkamers zijn ruim en licht en hebben een airco voor de warme zomerse dagen.
De complete en moderne badkamer ligt ook aan de voorzijde en is uitgevoerd met een brede inloopdouche, ligbad, toilet, kast en badkamermeubel met vaste wastafel en praktische lades. Geheel in wit met grijs/bruine kleurstelling.
Op deze verdieping zijn alle wanden strak afgewerkt met behang en de vloeren met verzorgde PVC-vloer.
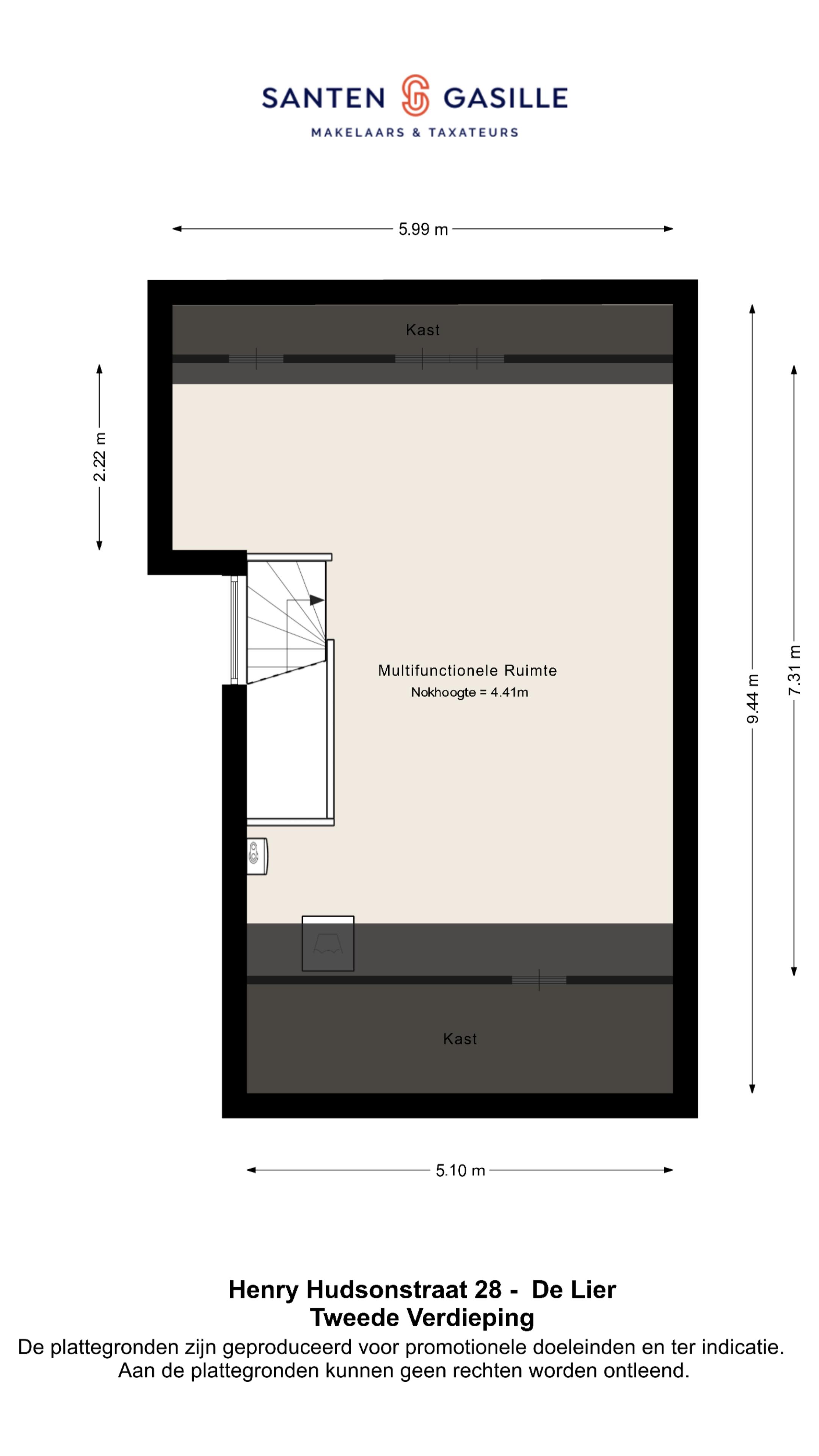
Tweede verdieping:
Deze verdieping is geheel afgewerkt met witte plafonds. Praktische bergruimte achter de schotten en naast de trap een tweede aansluiting voor de wasmachine en de opstelplaats van de MV en CV-ketel.
Deze verdieping is nu vooral in gebruik als werk- en hobbyruimte, maar is zeer ruim waardoor er een overloop en 1 of zelfs 2 slaapkamers en eventueel een vliering kan worden gerealiseerd.
Ligging:
De woning is zeer centraal gelegen. Het gezellige (winkel)centrum van De Lier ligt op korte afstand, maar ook scholen, openbaar vervoer, sport- en recreatievoorzieningen, uitvalswegen zijn goed bereikbaar.
Deze meer dan complete woning is zeer verzorgd afgewerkt en zonder investering zo te betrekken. Door de hoge plafonds, grote raamkozijnen, schuifpui en zijramen, is er zeer veel lichtinval en een ruimtelijke beleving. Bent u nieuwsgierig geworden? Maak dan snel een afspraak om de woning te komen bekijken.
Bijzonderheden:
- eigen grond, 200 m2
- medio 2023 binnenzijde begane grond voorzien van nieuwe luxe binnendeuren met kozijnen, wanden en plafonds geschilderd en de living voorzien van een gashaard
- schilderwerk buitenzijde geheel uitgevoerd in 2020
- 12 zonnepanelen geplaatst in 2022
- 3 slaapkamers en zolder voorzien van airco
- eigen parkeerplaats
- verzorgde voor- en achtertuin
- luxe en praktische berging zowel vanaf straatzijde als vanuit de hal bereikbaar
- 2x aansluiting voor de wasmachine
- volledig geïsoleerd
- zeer goed onderhouden en zonder investering te betrekken
- Santen & Gasille Verkoopvoorwaarden van toepassing
- oplevering in overleg
Specificaties
Overdracht
- Vraagprijs: €739.000,- k.k.
- Status: Beschikbaar
- Aanvaarding: In overleg
Bouw
- Soort woonhuis: Eengezinswoning
- Bouwjaar: 2012
- Soort dak: Zadeldak
Oppervlakten
- Woonoppervlakte: 159 m²
- Overige inpandige ruimte: 14 m²
- Perceel: 200 m²
- Inhoud: 625 m³
Meer weten over deze woning?

Reageer op deze woning
Meer weten over deze woning of een afspraak inplannen? Laat je gegevens achter en wij nemen zo snel mogelijk contact met je op!















































