2-onder-1-kapwoning
Omschrijving
Welkom bij deze nette eindwoning aan de Ambachtsweg 10 in Wateringen. Deze klassieke woonst uit 1923 biedt een woonoppervlakte van 143m², bestaande uit 4 slaapkamers en een zeer ruime woonkamer.
Met de gunstige tuin ligging op het Zuidwest, baadt de tuin de hele dag in het zonlicht, terwijl de kwalitatieve isolatie met dubbele beglazing ervoor zorgt dat het binnen steeds de perfecte temperatuur is.
Locatie & Omgeving
U geniet van de nabijheid van een reeks conveniënte faciliteiten zoals supermarkten, scholen en wandelparken, alles binnen handbereik. Openbaar vervoer en belangrijke uitvalswegen liggen eveneens vlakbij, en maken dagelijkse woon-werkverkeer eenvoudig en zorgeloos.
Algemene kenmerken van de woning
Dit geweldige huis, gebouwd in de jaren '20 van de vorige eeuw, behoudt zijn historische charme met moderne luxe. Met een totale oppervlakte van 143m², biedt deze woning een aangename begane grond leefruimte en heeft 4 slaapkamers.
De woning:
Vanuit de voortuin bereikt u de woning, deze heeft een hal, meterkast, toilet en toegang tot de zeer ruime woonkamer met een erker aan de voorzijde van de woning. Aan de achterzijde is de moderne keuken met het zeer ruime eetgedeelte en toegang tot de zonnige achtertuin. Tevens heeft de woning een aangebouwde bijkeuken met een werkblad en ook toegang tot de achtertuin.
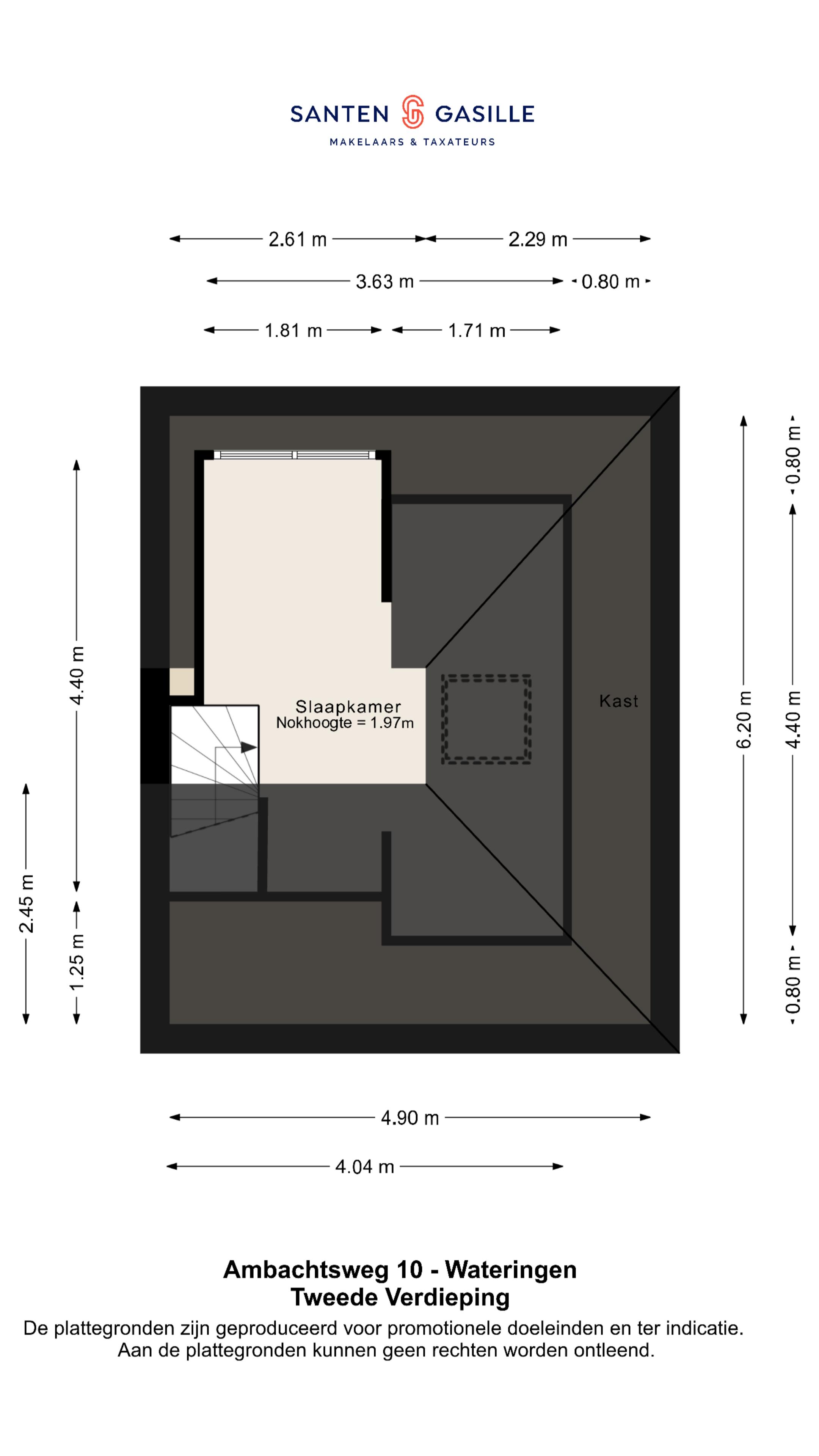
Het huis beslaat drie verdiepingen. De eerste verdieping telt drie slaapkamers en een nette badkamer die is uitgerust met een bad, douche en een wastafelmeubel met dubbele spoelbak. De tweede verdieping herbergt nog één slaapkamer.
Buitenruimte & tuin
De achtertuin is zeer ruim en kindvriendelijk met genoeg ruimte om te ontspannen of om gezellige zomeravonden te organiseren. De tuin heeft een toegang achterom en geeft directe toegang tot de garage.
Parkeren & extra voorzieningen
Er is voldoende parkeerruimte op eigen terrein, met capaciteit voor 3 auto's. Daarnaast is er de gehechte stenen garage, met ruimte voor nog één auto.
Bijzonderheden & extra informatie
- Energieklasse F
- perceel 514m², eigen grond
- Goede bereikbaarheid van het centrum van Wateringen
- Eigen parkeerruimte voor 3 auto's
- De gehele begane grond is voorzien van vloerverwarming
- Ouderdoms- en materialenclausule van toepassing
- Santen & Gasille Verkoopvoorwaarden van toepassing
- Oplevering in overleg
Zo een unieke kans op een perfecte locatie laat u toch niet liggen? Neem vandaag nog contact met ons op om een afspraak in te plannen! Uw droomhuis wacht op u aan de Ambachtsweg 10 in Wateringen.
Specificaties
Overdracht
- Vraagprijs: €800.000,- k.k.
- Status: Verkocht
- Aanvaarding: In overleg
Bouw
- Soort woonhuis: Eengezinswoning
- Bouwjaar: 1923
Oppervlakten
- Woonoppervlakte: 143 m²
- Overige inpandige ruimte: 7 m²
- Perceel: 514 m²
- Inhoud: 569 m³
Meer weten over deze woning?

Stefanie Kloosterman
Reageer op deze woning
Meer weten over deze woning of een afspraak inplannen? Laat je gegevens achter en wij nemen zo snel mogelijk contact met je op!




















































